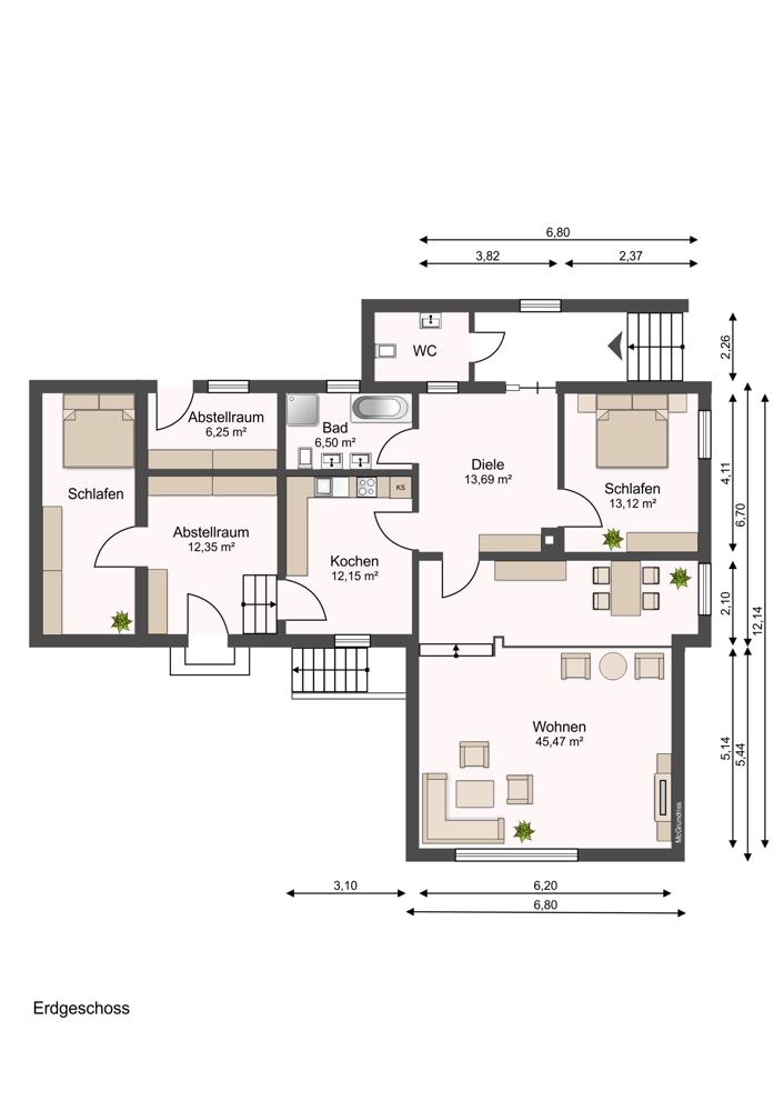
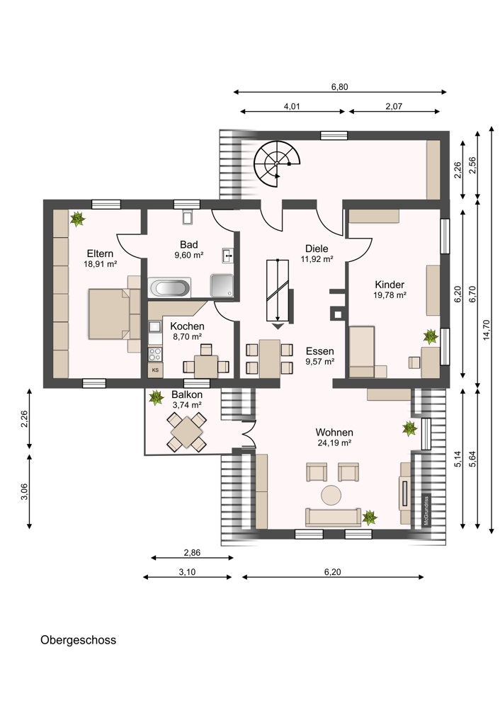
Dieses Wohnhaus erzählt Geschichten. Es steht für Beständigkeit, für gemeinsames Wohnen über Generationen hinweg – und für die Möglichkeit, daraus etwas Eigenes entstehen zu lassen. Das Zweifamilienwohnhaus überzeugt durch seine klare Struktur und die vielfältigen Möglichkeiten.
Die beiden Wohneinheiten sind derzeit getrennt und jeweils über eine Außentreppe separat zugänglich. Wer sich ein großzügiges Zuhause wünscht, kann die Einheiten über eine innere, vorhandene Treppe verbinden und so ein harmonisches Ganzes schaffen.
Das Wohnhaus zeigt den typischen Stil seiner Zeit – bodenständig, funktional und mit einem Grundriss, der sich hervorragend modernisieren lässt. Mit etwas Feingefühl und einem klarem Blick für Details entsteht hier ein Zuhause, das Tradition und Moderne vereint.
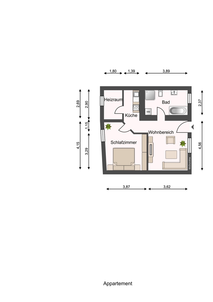
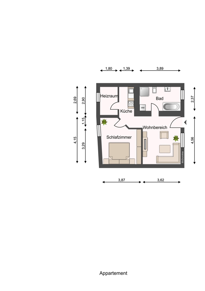
Das Badezimmer im Nebengebäude hat eine Dusche und eine Badewanne. Das Nebengebäude ergänzt das Anwesen und bietet zusätzlichen Raum - ob als Gästebereich, Atelier oder praktischer Abstellbereich.
Der Garten ist kompakt, gepflegt und leicht zu gestalten. Ein Ort, an dem man sich zurückziehen oder den Tag im Freien ausklingen lassen kann. Mehrere Stellplätze direkt am Haus sorgen für zusätzlichen Komfort.
Dank seiner Raumaufteilung bietet das Wohnhaus zahlreiche Wohnmöglichkeiten: Es eignet sich sowohl für die Teil- oder Vollvermietung. Ebenso denkbar ist die Kombination aus Wohnen und Arbeiten unter einem Dach – flexibel, praktisch und zukunftsorientiert.
Dieses Wohnhaus ist keine Immobilie von der Stange – es ist ein Ort mit Eigenheit, Geschichte und Raum für Zukunft. Wer hier einzieht, bringt nicht nur Möbel mit, sondern eine Idee davon, wie sich Zuhause anfühlen darf.
























