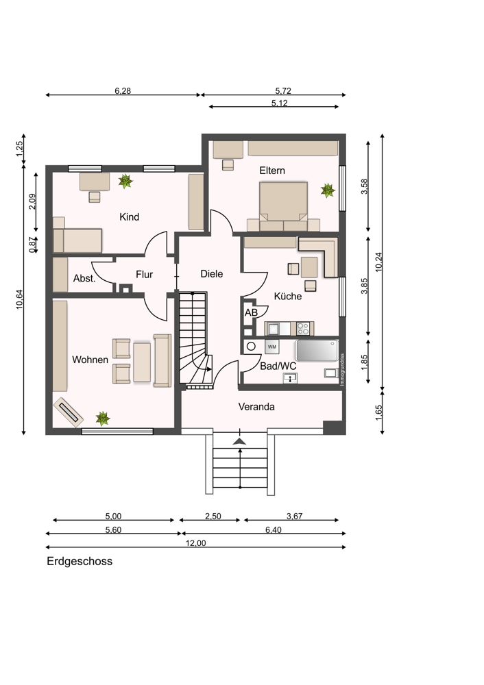
In ruhiger und naturnaher Lage von Heidenrod - Laufenselden präsentiert sich dieses gepflegte Einfamilienhaus aus dem Baujahr 1969 als attraktives Zuhause für Paare oder kleine Familien, die Wert auf ein großzügiges Grundstück und vielseitige Außenflächen legen. Auf einer Wohnfläche von ca. 105 m² verteilen sich insgesamt 3 Zimmer, die eine angenehme Wohnatmosphäre und flexible Nutzungsmöglichkeiten bieten.
Das Haus verfügt über zwei Badezimmer und ermöglicht damit einen komfortablen Alltag sowie eine gute Aufteilung für unterschiedliche Wohnbedürfnisse. Besonders hervorzuheben ist das ca. 842 m² große Grundstück mit großer Gartenfläche, das ideale Voraussetzungen für Erholung im Grünen, Hobbygärtner oder familienfreundliche Freizeitgestaltung schafft. Der gepflegte Vorgarten mit Terrasse lädt zum Verweilen ein und bietet einen schönen Rahmen für gesellige Stunden im Außenbereich.
Abgerundet wird das Angebot durch eine Garage sowie einen zusätzlichen Stellplatz, sodass auch in puncto Parkmöglichkeiten ein hoher Komfort gewährleistet ist. Dieses Einfamilienhaus in Heidenrod - Laufenselden vereint solide Substanz, ein großzügiges Grundstück und ein angenehmes Wohnumfeld – eine Immobilie mit Potenzial für alle, die in einer ruhigen Umgebung wohnen möchten.















