Sie sehnen sich nach einem Zuhause, das Ruhe, Natur und Gemütlichkeit vereint – und trotzdem alle Annehmlichkeiten des modernen Lebens bietet? Dieses Wohnhaus erfüllt gleich mehrere Wohnträume auf einmal!
Das Anwesen steht am Rande des Feriengebietes der Gemeinde Miehlen, in der Nähe des Stausees.
Das Haus wurde im Laufe der Jahre liebevoll erweitert und modernisiert. Im Jahr 2000 ist der große Anbau entstanden. Es ist ein echtes Unikat mit Charakter und Geschichte. Mit jedem Umbau hat es an Raum, Komfort und Charme gewonnen. Zuletzt wurde im Jahr 2024 eine Wärmepumpe eingebaut. Die Solaranlage mit Speicher hilft die Stromkosten im hohen Maße zu reduzieren, wie ein Blick in den Energieausweis zeigt.
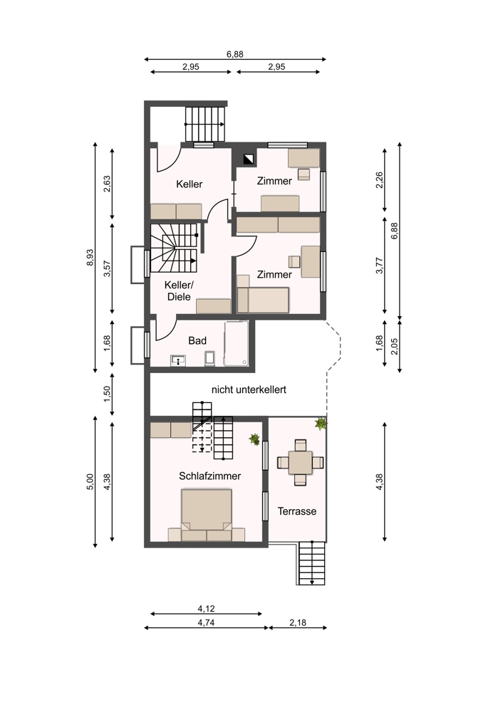
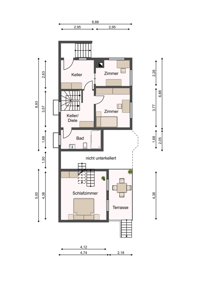
Es ist ein Wohnhaus nach modernsten Standards entstanden, das mit einem Schlafzimmer, einem Büro, drei Zimmern, zwei Bädern, verschiedenen Abstell- und Kellerräumen sowie dem offenen Wohn- und Essbereich mit Küche ausreichend Platz bietet. Hier findet man Ruhe, Frieden und Erholung in allen Lebenslagen.
Die 104 m² Wohnfläche erstrecken sich über mehrere (Halb -) Etagen.
Die verschiedenen Etagen sorgen für eine interessante Raumaufteilung und ein spezielles Wohngefühl. Entspannte Stunden können entweder in der Sauna, oder im Freien verbracht werden. Der idyllische Garten rundet das Gesamtbild ab: Er ist naturnah angelegt, mit Teich und einer Terrassenfläche – ein Paradies für Naturliebhaber und Ruhesuchende.
Für Fahrzeuge steht ein überdachter Stellplatz unter einem Carport zur Verfügung.
Ein Zuhause, das mit viel Liebe gewachsen ist – ruhig gelegen, durchdacht erweitert und gepflegt. Hier lebt man entspannt und stilvoll mit hoher Lebensqualität.
