Dieses moderne Fertighaus von Livinghouse präsentiert sich als modernes Zuhause, das zeitgemäße Architektur mit einem anspruchsvollen Wohnambiente vereint. Dank der stilvollen Ausstattung und der fortschrittlichen Haustechnik ist der Innenbereich sofort bezugsbereit – einziehen, auspacken und wohlfühlen.
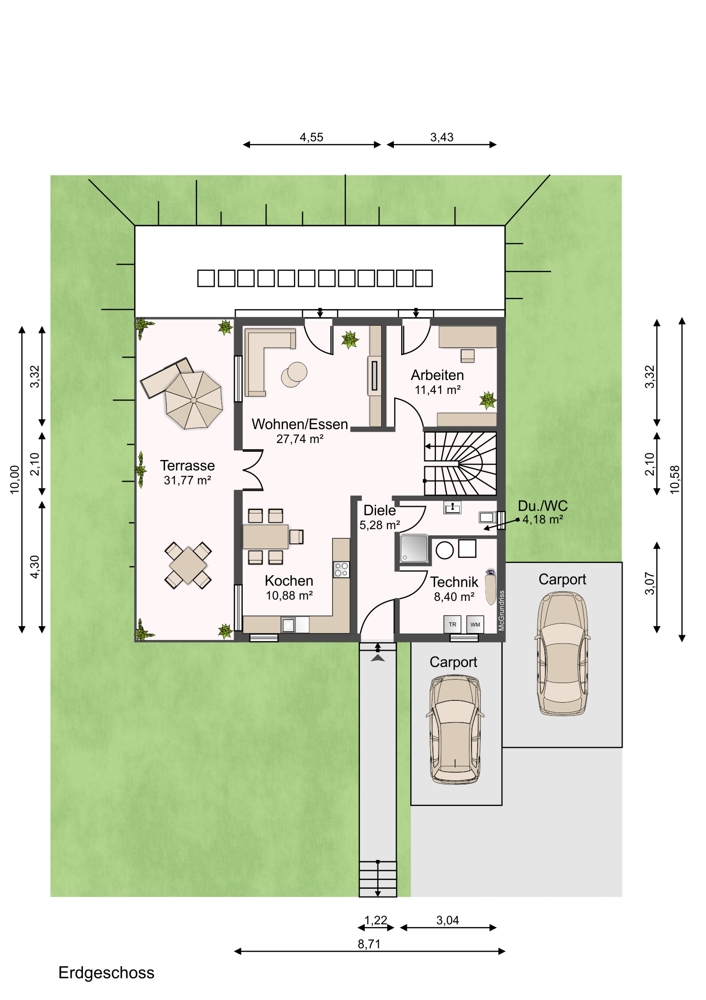
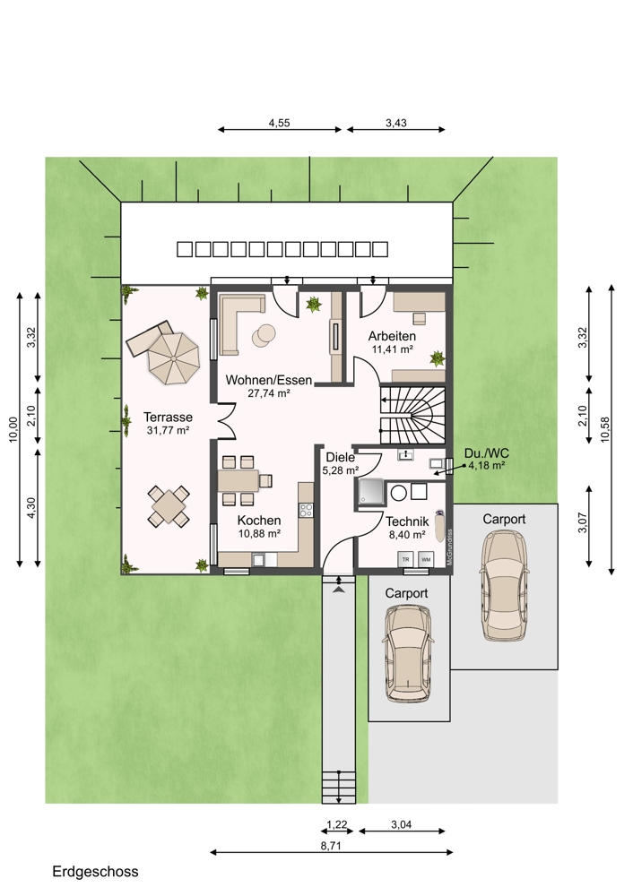
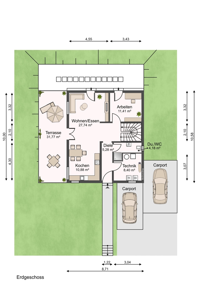
Im Erdgeschoss bildet die hochwertige Einbauküche das Herzstück: Sie bietet großzügige Arbeitsfläche, hohen Komfort und viel Raum für kulinarische Momente.
Der offene Wohn- und Essbereich mit direktem Zugang in den Garten schafft eine Atmosphäre, die Geselligkeit und Wärme ausstrahlt. Ergänzt wird diese Ebene durch ein Duschbad und ein weiteres Zimmer, das zusätzlich Nutzungsmöglichkeiten eröffnet.
Während das Erdgeschoss auf ein lebendiges Miteinander im Familienalltag ausgerichtet ist, bietet das Obergeschoss Ruhe und Privatsphäre. Das Elternschlafzimmer mit separater Ankleide sowie zwei helle, vielseitig nutzbare Zimmer lassen individuelle Gestaltungswünsche zu – ganz gleich, ob Kinderzimmer, Homeoffice oder Hobbyraum. Das moderne Familienbad fügt sich mit klaren Linien harmonisch ein.
Der Außenbereich ist noch fast unberührt und verfügt über Gestaltungsspielraum. Hier entscheiden Sie, wie Garten und Hof am Ende aussehen sollen – Ihre Vorstellungen und Wünsche geben hier den Ton an.



















