Dieses Haus gehört zu den seltenen Immobilien, die man betritt – und sofort spürt, dass sie etwas Besonderes sind. Schon beim Eintreten wird deutlich, dass hier mit viel Gespür für Stil, Qualität und Atmosphäre saniert und gestaltet wurde. Jede Fläche, jeder Raum wirkt durchdacht und trägt eine extravagante Handschrift.
Die umfassende Sanierung erfolgte vor einigen Jahren mit höchstem Anspruch an Material, Funktion und Design. Entstanden ist ein Zuhause, das Modernität mit Behaglichkeit verbindet – edel, aber nicht kühl; außergewöhnlich, aber immer wohnlich. Besonders eindrucksvoll zeigt sich das im Eingangsbereich, der mit seiner offenen Empore und der exklusiven Gestaltung ein einzigartiges Raumgefühl schafft.
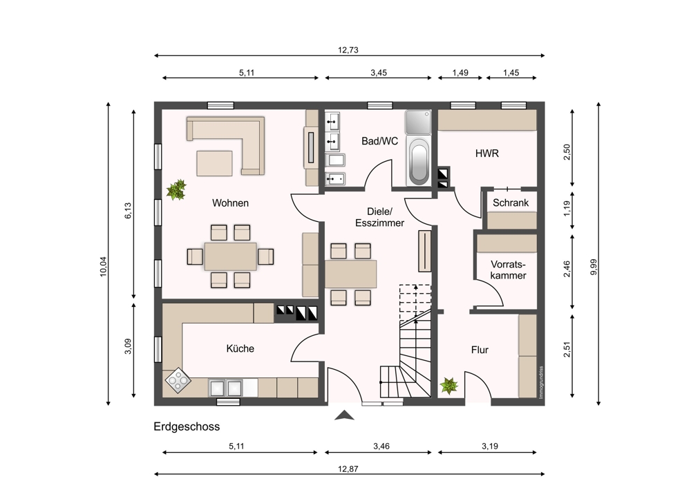
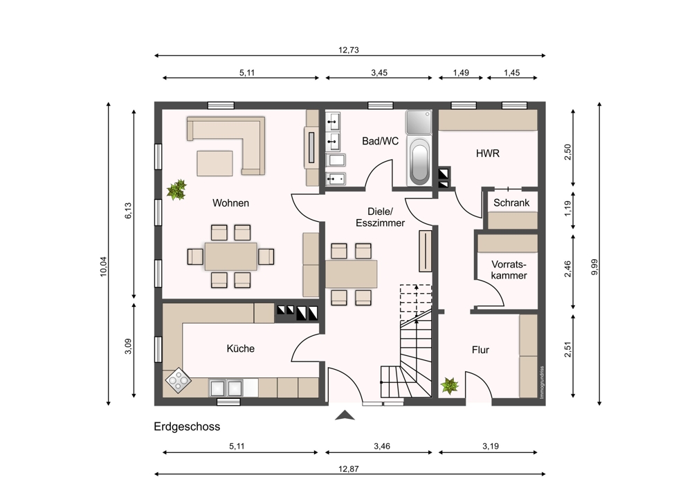
Die Küche überzeugt durch wertige Materialien, durchdachte Details und eine klare Formsprache. Sie grenzt an den individuellen Wohn- und Essbereich und unterstreicht den modernen Charakter des Hauses – ein Ort, an dem Stil und Alltag mühelos zusammenfinden.
Im Hof setzt sich dieses Konzept fort: Dort befindet sich eine Outdoor-Küche mit Theke, ergänzt durch eine großzügige Terrasse mit Grillplatz. Ein Bereich, der in den wärmeren Monaten zum Mittelpunkt wird und Gourmet-Herzen höherschlagen lässt – echter Komfort und durchdachter Luxus im Außenbereich.
Zum Haus gehört außerdem ein Nebengebäude mit kleiner Werkstatt, Motorrad-Garage und Abstellraum. Ein Carport für zwei Fahrzeuge ergänzt das Ensemble.
Das gesamte Anwesen präsentiert sich in einem gepflegten, nahezu neuwertigen Zustand. Ein Teil der Möbel wird auf Wunsch im Haus verbleiben und kann übernommen werden – eine perfekte Ergänzung zum individuellen Stil des Gebäudes.
Dieses Wohnhaus ist mehr als nur eine Immobilie – es ist ein Statement. Ein Ort für Menschen, die das Besondere suchen, Wert auf ästhetische Klarheit legen und zugleich ein Zuhause wünschen, das sich jeden Tag neu entdecken lässt.

























