Dieses Einfamilienwohnhaus erstreckt sich über drei Wohnetagen sowie ein Kellergeschoss und bietet damit ein großzügiges Raumangebot für ganz persönliche Wohn- und Nutzungskonzepte. Im gesamten Haus finden sich zahlreiche Räume, die flexibel gestaltet werden können – ideal für Familien, Arbeiten von Zuhause oder individuelle Hobbys. Besonders schön: sichtbare Holzbalken fügen sich harmonisch in das Wohnkonzept ein und sorgen als charakterstarker Blickfang für eine warme, wohnliche Atmosphäre.
Das Erdgeschoss bildet den zentralen Lebensmittelpunkt des Hauses. Hier befindet sich eine große Wohnküche mit ausreichend Platz für einen großen Esstisch – perfekt für gesellige Stunden. Ein direkter Zugang führt zur großzügigen Dachterrasse, die sich als wunderbarer Rückzugsort im Freien anbietet. Ergänzt wird diese Ebene durch ein Wohnzimmer, ein Gäste-WC sowie einen praktischen Abstellraum.
Im Obergeschoss liegt der private Rückzugsbereich mit drei Zimmern, einem Duschbad sowie einem kleinen Balkon, der vom Flur aus erreichbar ist.
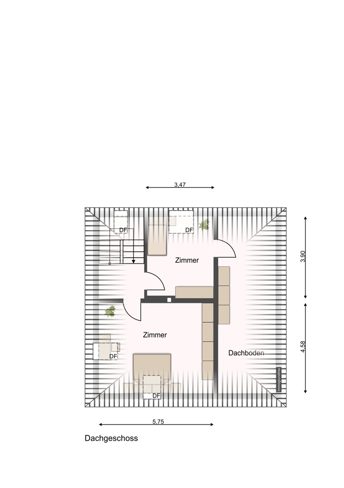
Das Dachgeschoss erweitert die Wohnfläche um zwei weitere Zimmer und bietet zusätzlich einen Bereich, der als Stauraum genutzt werden kann.
Auch das Kellergeschoss überzeugt mit drei Kellerräumen, die hilfreiche Abstellmöglichkeiten bieten. Abgerundet wird das Angebot durch eine Garage mit direktem Zugang zum Haus, die zusätzlichen Komfort im Alltag schafft. Der Außenbereich ergänzt das Gesamtbild ideal: Eine große Wiesenfläche bietet viel Platz im Freien, während ein Pavillon einen angenehmen Ort zum Verweilen und Entspannen schafft.





















