Diese gepflegte Doppelhaushälfte aus dem Baujahr 1996 überzeugt durch ihre großzügige Wohnfläche von ca. 175m², eine durchdachte Raumaufteilung sowie zahlreiche Ausstattungsmerkmale, die komfortables Wohnen für die ganze Familie ermöglichen. Helle Böden und Wände sowie große Fensterflächen schaffen in allen Etagen eine freundliche, lichtdurchflutete Wohnatmosphäre.
Bereits beim Betreten des Hauses empfängt Sie ein einladender, hell gestalteter Eingangsbereich und angrenzendem Gäste-WC. Das Erdgeschoss bildet mit seinem großzügigen Wohn- und Essbereich den lebendigen Mittelpunkt des Hauses. Dank großen Fensterflächen ist dieser Raum besonders hell und offen gestaltet und bietet zudem direkten Zugang zur Terrasse und macht diesen Bereich besonders in warmen Monaten zu erweitertem Wohnraum. Die Küche ist sowohl vom Wohnbereich als auch separat über den Flur erreichbar, was kurze Wege ermöglicht.
Eine Fußbodenheizung sorgt hier wie auch im Obergeschoss für zusätzlichen Wohnkomfort.
Im Obergeschoss befinden sich zwei Kinderzimmer, ein Schlafzimmer sowie gleich zwei vollwertige Bäder- ein Wannenbad und ein separates Duschbad für einen reibungslosen Start in den Tag.
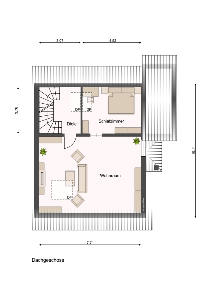
Ein weiteres Plus bietet das Dachgeschoss: Mit einem großen Wohn- und Hobbyraum und einem separaten Schlafzimmer eignet sich diese Etage hervorragend als Gäste- oder Jugendbereich, Rückzugsort oder auch als Homeoffice.
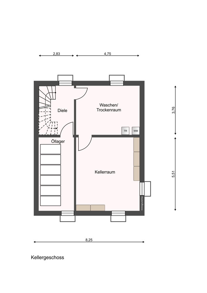
Auch das Untergeschoss überzeugt mit Mehrwert. Neben einem Wasch-/ Trockenraum und einem Heizungsraum befindet sich hier ein separater Wellnessbereich mit Sauna und Jacuzzi- ein besonderes Highlight, das Entspannung und Erholung im eigenen Zuhause ermöglicht.
Abgerundet wird diese Immobilie durch eine Garage mit angrenzendem Carport für genügend Platz auch außerhalb des Hauses.
Dank des bereits vorhandenen Glasfaseranschlusses ist auch modernes Arbeiten von zu Hause aus problemlos möglich.
Dieses Haus vereint Großzügigkeit, Helligkeit und flexible Nutzungsmöglichkeiten und bietet ideale Voraussetzungen für Familien, die ein Zuhause mit ausreichend Platz und besonderem Mehrwert suchen: Fix und fertig- sofort zum Einzug bereit!























