Willkommen in diesem charmanten Einfamilienhaus, das sich über drei Wohnetagen erstreckt und mit viel Raum, Liebe zum Detail und einer guten Portion Ausbaureserve überzeugt.
Im Erdgeschoss erwartet Sie eine großzügige Wohnküche – der perfekte Ort für gemeinsames Kochen, gute Gespräche und spontane Feste. Ein zusätzliches Zimmer sowie ein Badezimmer und ein Gäste-WC runden diesen Bereich ab und sorgen dafür, dass es nie zu eng wird.
Im Obergeschoss trifft Gemütlichkeit auf Funktionalität: Ein einladendes Wohnzimmer mit Kachelofen sorgt für wohlige Wärme an kalten Tagen, während der nahtlose Übergang in ein weiteres Zimmer für mehr Platz sorgt. Ein zusätzliches Büro auf dieser Etage rundet das Raumangebot ab.
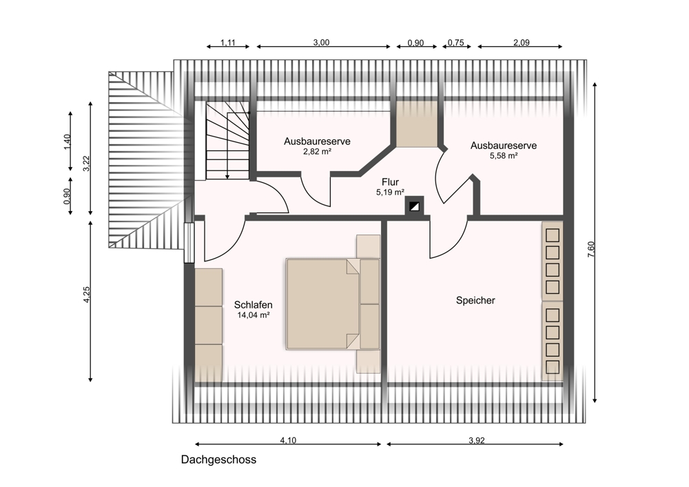
Das Dachgeschoss bietet aktuell ein Zimmer, aber vor allem: jede Menge Potential! Die übrige Fläche eignet sich hervorragend als Ausbaureserve, zumal die Rohinstallation für Küche und Badezimmer bereits vorhanden sind – ob als separater Rückzugsort für Teenagerträume, Gästezimmer oder Hobbybereich, hier können Sie Ihre Ideen frei entfalten.
Praktisch geht es im Kellergeschoss weiter, wo sich ausreichend Abstellmöglichkeiten befinden – perfekt für alles, was nicht täglich gebraucht wird, aber trotzdem seinen Platz haben soll.
Auch von außen zeigt das Haus Charakter: Die Fassade mit Holz- und Schieferverkleidung verleiht dem Gebäude eine warme, natürliche Ausstrahlung. Der kleine, zur Straße hin abgegrenzte Hof, lädt zum Verweilen im Freien ein. Und wer mehr Platz zum Genießen sucht, findet ihn auf der Dachterrasse über der großen Doppelgarage/ Werkstatt – ein echtes Highlight mit Blick über die Nachbarschaft.
Dieses Wohnhaus ist kein Neubau von der Stange – es ist ein Zuhause mit Geschichte, Seele und vielen Möglichkeiten. Wer Charme, Individualität und Raum für eigene Ideen sucht, wird sich hier schnell zuhause fühlen.






















